UPDATE 9/13/2021 - Old Trenton Road and Edinburg Road Work On Hold Due to Ida Damage
UPDATE 9/13/2021 - Old Trenton Road and Edinburg Road Work On Hold Due to Ida Damage
The County of Mercer has postponed the start of the work at the intersection of Old Trenton Road (CR 535) and Edinburg Road (CR 526) due to the need to divert crews to necessary repairs in the wake of post-Ida infrastructure damage assessments. A future start date will be announced when received.
UPDATE 8/12/2021 TRAFFIC ADVISORY - Old Trenton Road and Edinburg Road Work to Begin 9/07/2021
Then, in the text body, please delete the existing and replace with the attached, including the attached detour plan:
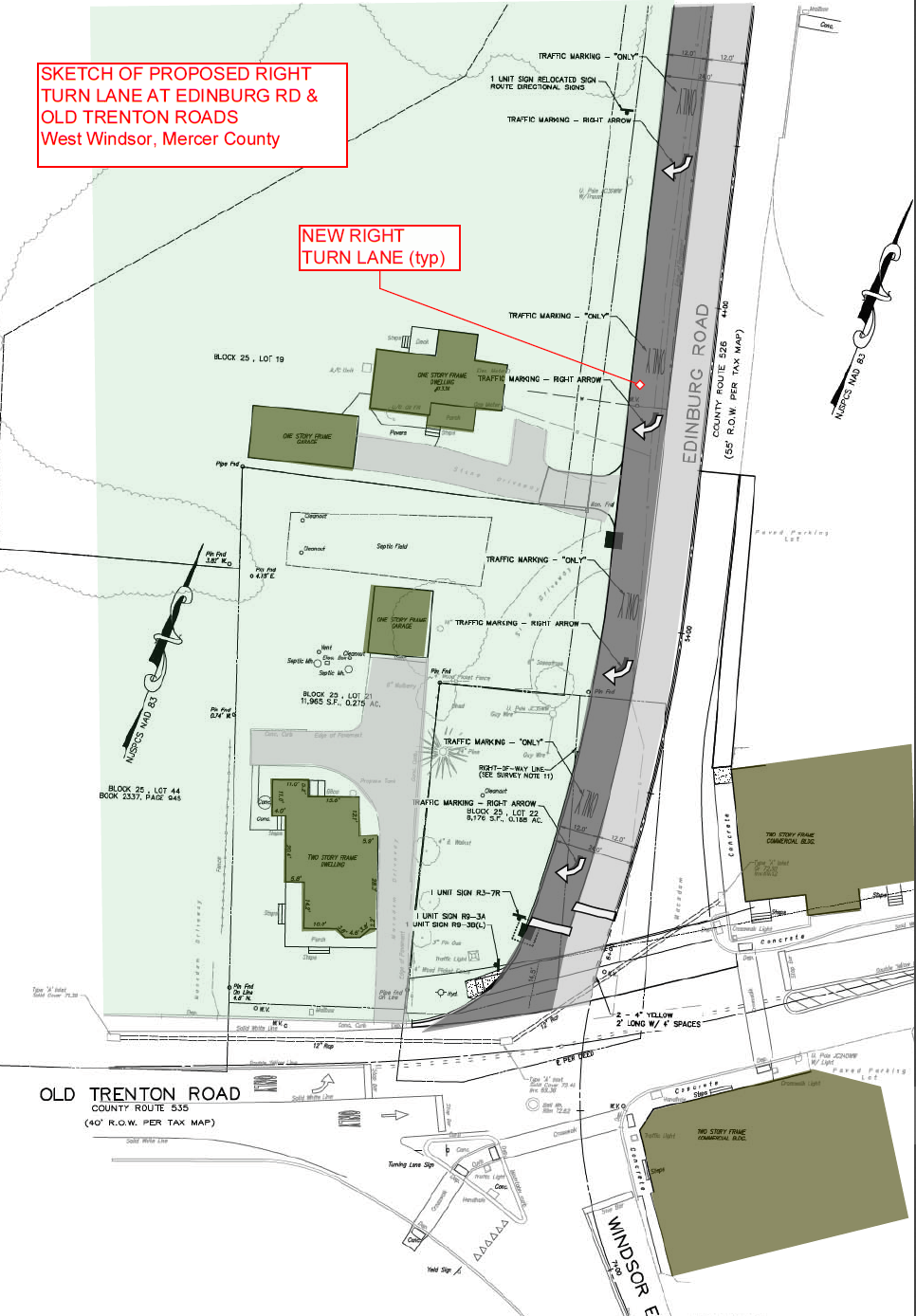
The County of Mercer will begin road work at the intersection of Edinburg Road (CR 526) and Old Trenton Road (CR 535), starting on or about Tuesday, September 7, 2021. The work will result in the addition of a right-turn lane on south bound Edinburg Road (see sketch). Working hours will be Monday – Friday from 9:00 am – 3:00 pm and the duration of the project is expected to be approximately three (3) weeks, weather permitting.
During the working hours the south bound Edinburg Road lane will be CLOSED and detoured using New Village Road and Old Trenton Road (see detour plan). Intermittent lane closures on Old Trenton Road will occur with drainage, utility and the paving work. Access will be permitted for local residents, municipal and emergency vehicles.
Please honor all temporary traffic control measures for your safety and the safety of others.
TRAFFIC ADVISORY - Old Trenton Road and Edinburg Road Work to Begin 7/26/2021
The County of Mercer will begin road work at the intersection of Edinburg Road (CR 526) and Old Trenton Road (CR 535), starting on or about Monday, July 26, 2021. The work will result in the addition of a right-turn lane on south bound Edinburg Road (see sketch). Working hours will be Monday – Friday from 9:00 am – 3:00 pm and the duration of the project is expected to be approximately two (2) weeks, weather permitting. During the project the roadways in the vicinity are expected to remain open to the traveling public. Intermittent lane closures may occur with utility work and the paving work. Please honor all temporary traffic control measures for your safety and the safety of others.
